Infill Development Boise

Discover smart infill development opportunities in Boise. Mode Homes helps transform underutilized lots into valuable housing with expert planning, design, and construction support.

Infill Development Boise, Idaho

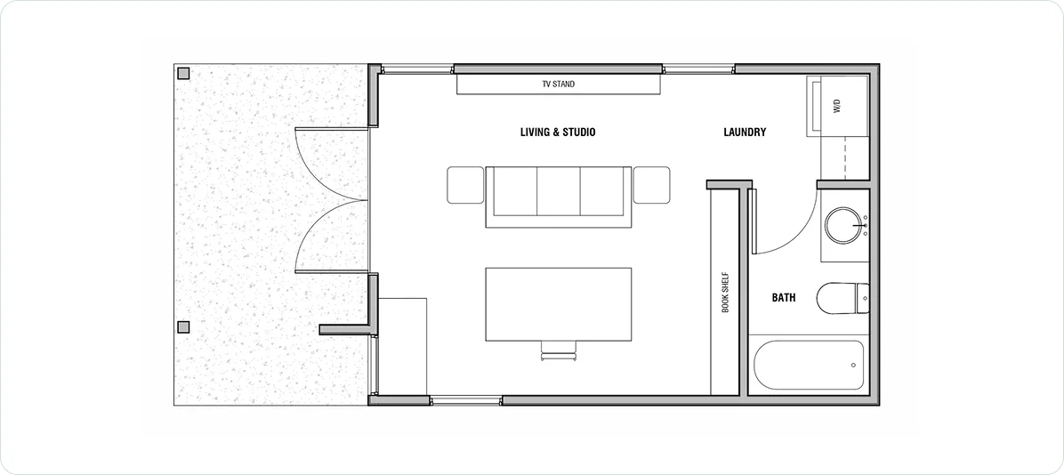
Boise, Idaho is ripe for infill development as population growth continues on a steady incline, but a few coveted neighborhoods remain far and above the most desirable locations to live. If you own land you are considering developing, this is where we come in as your end to end development partner. We take you through the development process: site design, entitlements, horizontal construction, building design, and building construction. We can complete this process on a fee basis or possibly as a JV structure. We pride ourselves on being on the cutting edge of the development code to enable developers to achieve highest and best use and the best return on investment for their project. Reach out today to learn more.

How Can Mode Homes add Value to Your Infill Development

We have a strong team on design, engineering, and construction. We have a strong understanding of the code and will help maximize the usage of the site depending on your goals. We are well studied in active projects throughout the city and an in-house realty team to determine comps on for-sale projects and strong relationships with multiple property managers to determine rental comps on build-to-rent projects. We can help just as a development consultant through any phase and multiple exit strategies.

Is Boise a Good Market for Infill Development?

In my opinion, Boise continues to be a strong market for well-planned infill projects. There isn’t much easy land left inside the city, which makes underutilized lots and redevelopment opportunities more valuable. People still want to live close to downtown, the river, and established neighborhoods, and that demand supports smaller, thoughtfully designed housing. Boise’s modern zoning code also creates real opportunity if you understand how to work within it. Not every deal works, but with conservative underwriting and the right product, infill development in Boise can make a lot of sense.

How Can Mode Homes add Value to Your Infill Development

We have a strong team on design, engineering, and construction. We have a strong understanding of the code and will help maximize the usage of the site depending on your goals. We are well studied in active projects throughout the city and an in house realty team to determine comps on for-sale projects and strong relationships with multiple property managers to determine rental comps on build-to-rent projects.

Ready to Unlock Your Property’s Potential?

Schedule a free consultation with our ADU experts. We’ll assess your property, review your goals, and deliver a detailed, no-obligation estimate.

Serving Boise, Idaho and Surrounding Communities